Sold
Berwyn Road, TW10
£3,150,000
4 Bedrooms
An Exceptional Detached Family House with a 95ft West-Facing Garden on Berwyn Road.
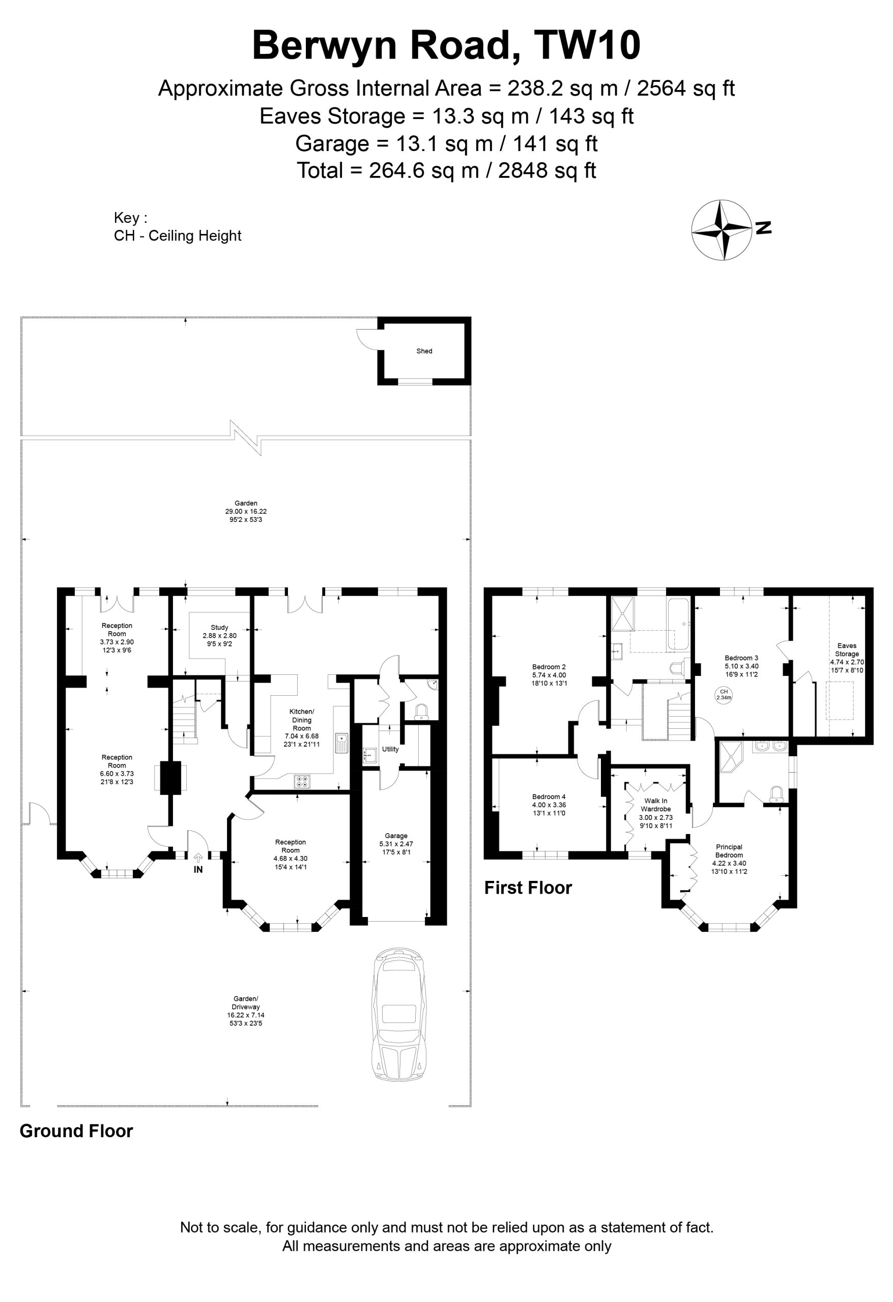
This remarkable double-fronted detached family home offers an expansive 2,850 sq ft of living space with the possibility for further extensions. Set back from the road, the property features a gated pathway and a beautifully landscaped front garden that leads to a welcoming porch and front door.
The ground floor presents a spacious hallways entrance, a double reception area that extends from front to back, with doors opening onto the garden. Additionally, there is a formal reception room, a home office with garden views, a generously sized utility room with a WC and access to the garage, as well as a kitchen that accommodates a dining area, leading to the magnificent garden. This stunning west-facing garden, primarily laid to lawn, measures over 95 ft in length.
On the first floor, the principal bedroom boasts a walk-in wardrobe and dressing area, along with an en suite bathroom. There are also three more double bedrooms, one of which offers the potential for further extension into the eaves, in addition to a family bathroom on this level.
The property includes a garage, off-street parking, and side access to the garden, providing added convenience.
This beautiful family home presents prospective buyers with a rare opportunity to enhance both living space and property value, with significant potential to extend on the ground floor, first floor, and into the loft, ultimately achieving approximately 4,000 sq ft of accommodation.
Berwyn Road is a highly coveted location adjacent to Richmond Park, Sheen Common, and the Sheen Lawn Tennis and Cricket Clubs, and is just moments away from Sheen Mount Primary School. The property also offers easy access to Central London, with Hyde Park situated just seven and a half miles away. Furthermore, it is ideally located for international travel, being nine miles from Heathrow Airport.
The surrounding area is home to numerous esteemed schools, including The Old Vicarage, St Paul’s, Tower House, Ibstock Place School, as well as the German and Swedish Schools, Colet Court, and Kings House School.
Residents can enjoy a variety of leisure and sporting facilities, such as Ham Polo Club, The Roehampton Club, the Bank of England Sports Ground, and Sheen Tennis and Squash Club.
Numerous golf courses, including The Royal Mid Surrey Golf Club and Richmond Golf Club, are also nearby. Additionally, the expansive 2,300 acres of Richmond Park offer ample opportunities for walking, running, and cycling.

























